Accueil / Projets / Equipement / Construction d'un centre aquatique, à Eysines (33)

Construction d'un centre aquatique, à Eysines (33)

mission complète | type construction neuve | maître d’ouvrage privé | surface 210 m² | budget 300.000€HT | lieu Eysines [33] | délai 1 an étude et chantier | livraison septembre 2018

 

Eysines, commune située au nord-ouest de la métropole bordelaise, sur la route de Lacanau, est désormais dotée d’une salle de sports dédiée aux activités aquatiques, au cœur d’une zone d’activités commerciales de proximité, sur le parcours d'une ligne de tramway.

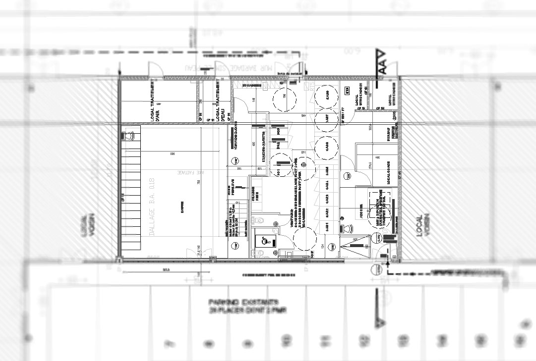
 Les travaux comprennent la création d’un bassin de 35 m², des vestiaires, des bureaux et des locaux techniques.

 Le programme exige la conception d’un espace recevant du public (ERP), abritant une piscine intérieure, dans un bâtiment existant de type hangar industriel, de grande hauteur sous plafond.

 Les normes d’hygiène et de sécurité concernant le traitement des eaux, la circulation du public nécessitent de s’adapter à la structure. Les postes accessibilité, sécurité incendie sont aussi particulièrement soignés grâce à la collaboration avec des bureaux d’études spécialisés.  

 L’optimisation du budget autorise la création d’espaces généreux, dont la simplicité de la décoration apporte l’élégance. Par exemple, en façade, le soubassement en bardage métallique doré contraste avec l’attique traité en gris foncé et les menuiseries aluminium laquées noires. Une sensation de légèreté se dégage de l’ensemble. En écho, à l’intérieur, la charte couleur se décline en camaïeux de gris (carrelages, revêtements PVC…) agrémenté de quelques touches de jaune (vestiaires).

 

 « Swim in the city », premier équipement sportif réalisé d’une future chaîne de salle de sports aquatiques, accueille des bébés nageurs, propose des cours d’aquagym et aquabike.

 

Les entreprises : Démolition et Gros œuvre RONCAROLO ; Bardage SAREC ; Plâtrerie SMDCM ; Serrurerie INPOSE ; Menuiserie Extérieure SML ; Menuiserie Intérieure CHUSSEAU ; Revêtement de sol PLAMURSOL ; Traitement de l’eau BRETTES ; CVC Plomb AXIMA ;

 

Crédit photos : Denis LACHARME