Accueil / Projets / Logement / Construction d'une maison familiale de 4 chambres à Talence [33].

Construction d'une maison familiale de 4 chambres à Talence [33].

mission permis de construire | type construction neuve | maître d’ouvrage privé | maître d’œuvre Rodde-Aragües Architectes | phase dossier de permis de construire | surface 140m² | budget N.C. | lieu Talence (33) 

 

Ce projet est pour une jeune famille s'agrandissant. Son implantation à Talence à quelques minutes du tram et des commerces permet de profiter d'un beau jardin ensoleillé et boisé.

 

Le terrain est situé dans un petit lotissement, dans une rue formant un angle dont le pli se lit en façade. Les matériaux sont ceux utilisés classiquement dans le quartier d'échoppes dans lequel ce projet est implanté, et sont une exigence du règlement de lotissement.

Cette façade destinée à terme à se fondre avec celles des futures autres constructions, est contrebalancée par une élévation sur jardin d'écriture plus contemporaine. Pour cette partie arrière les matériaux utilisés sont le bois, la brique grise et un enduit clair. Toutes les menuiseries du projet sont en aluminium anthracite.

 

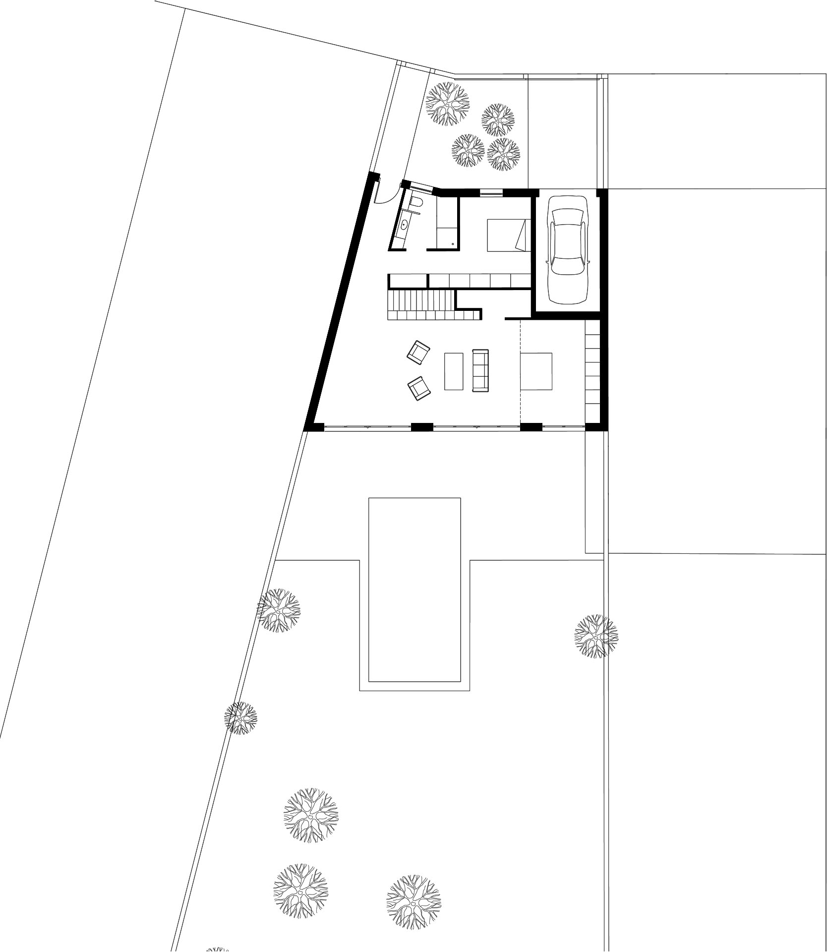
Le plan de la maison profite de l'orientation au Sud sur jardin, en ouvrant les pièces de vie à double hauteur et largement vitrées, sur cette exposition ensoleillée.

Le niveau rez-de-chaussée est complété par une suite parentale, un garage, un cellier et de nombreux rangements.

L'étage propose trois belles chambres, une large salle de bains, et un espace partagé sur le grand palier d'arrivée de l'escalier.