Accueil / Actualites / Partage d'espace de travail

Partage d'espace de travail

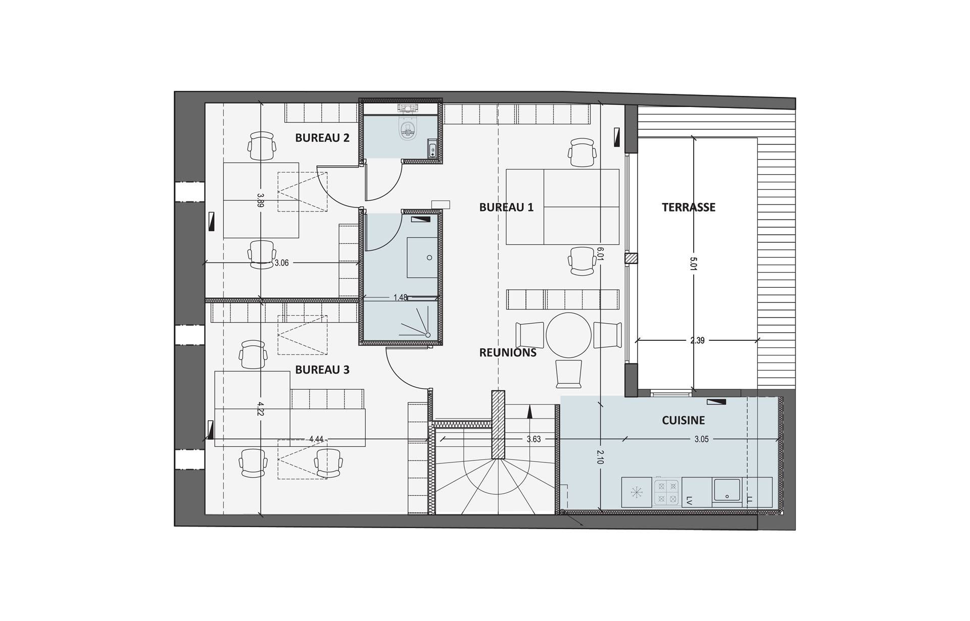
Nous partageons un local professionnel à Bordeaux, dans le quartier des Chartrons (Camille Godard / Emile Counord).

Un espace pour deux postes de travail [dans le Bureau 2] est disponible immédiatement : pièce sous plafond éclairée par un lanterneau et une fenêtre de toit.

Le local comprend une cuisine, un coin réunion, des sanitaires, une salle de bains et une terrasse de 12m². Il est situé au deuxième et dernier étage d’une maison pierre surélevée. 

Le loyer pour l’emplacement d’un groupe de 2 postes est de 320€HT (+ 50€HT de charges). Ce montant comprend toutes les charges et prestations : coin réunions, cuisine, accès internet et téléphone, ménage, etc. hors mobilier, reprographie et électricité.

Nous demandons un mois de caution, et deux mois de préavis.

Merci de relayer l’information !