Accueil / Actualites / Partage de bureaux à Bordeaux Chartrons

Partage de bureaux à Bordeaux Chartrons

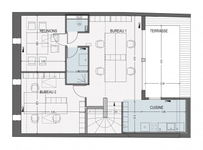
Nous partageons un local professionnel en cours de création à Bordeaux, rue du Jardin Public, dans le quartier des Chartrons (Camille Godard / Emile Counord).

Une pièce [Bureau 1] sera disponible, pour 4 postes de travail à partir de la fin du mois de Mars 2017 : grande pièce avec belle hauteur sous plafond et très lumineuse face à la terrasse au Sud.

 

Le local comprend une cuisine, une salle de réunion, des sanitaires, une salle de bains et une terrasse de 12m². Il est situé au deuxième et dernier étage d’une maison pierre surélevée. 

 

Le loyer pour le bureau entier [4 postes] est de 600€C.C. ou de 320€C.C. par groupe de deux postes. Ce montant comprends toutes les charges et prestations : salle de réunion, cuisine, accès internet et téléphone, ménage, etc. hors mobilier.

Nous demandons un mois de caution, et deux mois de préavis.

 

Merci de relayer l’information !