Accueil / Projets / Logement / Réhabilitation et extension d’une maison à Mérignac [33].

Réhabilitation et extension d’une maison à Mérignac [33].

mission études et chantier | type construction réhabilitation et extension | maître d’ouvrage privé | maître d’œuvre Rodde-Aragües Architectes | phase permis de construire 2018 | surface 225m² | budget N.C. | lieu Mérignac (33) 

 

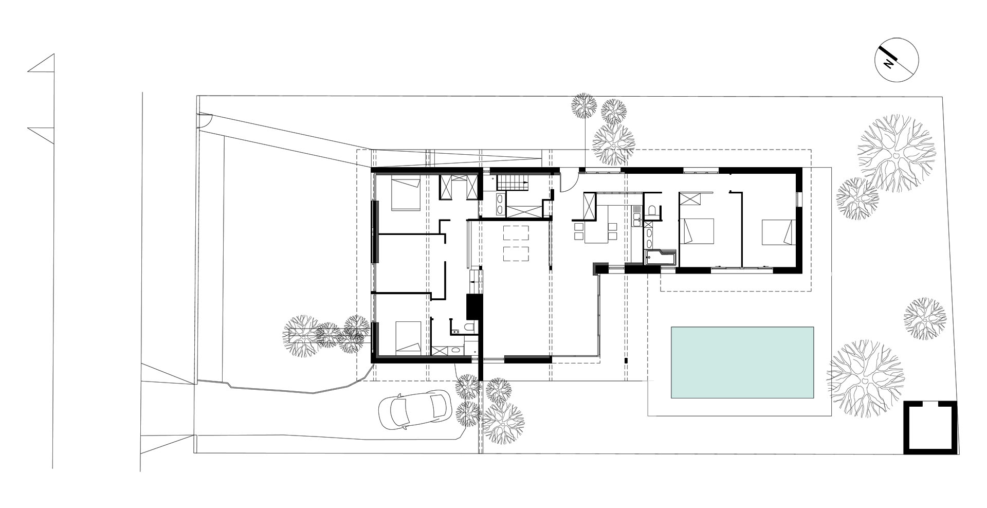
Réhabilitation et extension d’une villa de 1967, située dans une zone résidentielle de Mérignac et adossée à un parc boisé.

Les travaux permettent la création de deux chambres avec salle de bain et la réhabilitation complète de l’existant. L’entrée et la cuisine sont déplacées dans la partie neuve.

 

L’extension génère une forme en L qui structure les espaces extérieurs, dans lesquels une piscine est implantée.

 

Ces travaux s’accompagnent de la création de rangements, du remplacement du système de chauffage, des menuiseries et des isolants thermiques.