Accueil / Projets / Logement / Villa contemporaine atypique avec atelier de peintre

Villa contemporaine atypique avec atelier de peintre

Villas contemporaine atypique avec atelier d'artiste.

 

mission Base loi MOP | type construction neuve | maître d’ouvrage privé | maître d’œuvre Charles Delamy architecte mandataire | projet 2005 | surface 300m² | budget 365K€HT | lieu Ecrosnes (28)

 

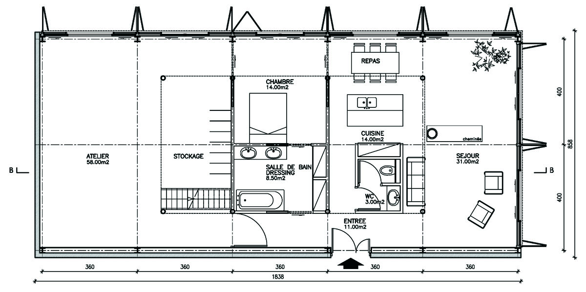
Ce projet de construction d'une villa neuve doit permettre de proposer un atelier pour des activités de peintre et photographe, avec un lieu de vie ouvert, le tout dans un volume unique et une écriture contemporaine.

Les méthodes de construction sont empruntées aux techniques industrielles des hangars agricoles permettant une maîtrise des coûts, une autorégulation thermique de l’enveloppe, et une insertion évidente dans le milieu rural environnant.

 

La structure de métal est posée sur une simple dalle de béton, et est ensuite habillée d’une peau de polycarbonate alvéolaire translucide. Des éléments de mobilier placés en filtres, également translucides, sont placés le long des façades.